Гидрораспределитель DLHZO-TE-040-L3140 ATOS
✓ Сертифицированное оборудование
✓ Гарантия надежной эксплуатации
✓ Контроль качества на каждом этапе
✓ Современное оборудование
✓ Быстрая отгрузка
Основные технические данные
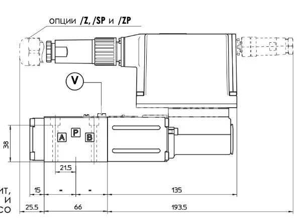
Условный проход : 6мм
Рабочее давление: 35МПа
Пропускная способность: 80л.
Тип монтажа: модульный (стыковой, плиточный)
Масса : 2,6 кг
Схема распределения потока рабочей жидкости:


DHZO-A* и DKZOR-A* представляют собой пропорциональные распределители прямого действия, не имеющие датчика положения, которые позволяют перенаправлять потоки и регулировать расход (без компенсации) в зависимости от электронных опорных сигналов. Эти распределители работают в тандеме с электронными драйверами, которые подают на них ток, изменяющийся в соответствии с опорным сигналом от блока контроля и управления устройством.
Существуют различные варианты исполнения этих распределителей: -А без датчика положения, а также -AE и -AES, которые дополнительно оснащены встроенной аналоговой (AE) или цифровой (AES) электроникой. Четырехлинейный золотник перемещается внутри пятикамерного корпуса и управляется непосредственно пропорциональными электромагнитами. Встроенная электроника и калибровка, выполненная на заводе, гарантируют высокие функциональные характеристики и взаимозаменяемость распределителей, облегчая их подключение и установку.
Для цифровых исполнений ТES доступны следующие интерфейсы связи: -PS, представляющий последовательный интерфейс RS232, где аналоговые команды поступают на распределитель через разъем с 7 (или 12) штырьками; -ВС, интерфейс CANbus; -BP, интерфейс PROFIBUS-DP.
Вариант I позволяет использовать опорные сигналы и сигналы обратной связи с током 4÷20 мА вместо стандартных 0÷10 В, что особенно полезно на больших расстояниях между блоками управления и распределителями или в условиях электрических помех. В случае обрыва кабеля опорного сигнала распределитель отключается.
Вариант Q обеспечивает защиту, позволяя подключать или отключать распределитель без отключения электропитания. Вариант /Z предоставляет специфическую защиту для интерфейсов связи -ВС и -ВР, вводя возможность подключения двух отдельных источников питания для цифровых контуров и электромагнита, а также обеспечивая сигналы подключения и обнаружения ошибок. Эта опция позволяет отключить электромагнит, сохраняя питание на цифровых контурах, что предотвращает сбой контроллера “fieldbus”.
Для электроники с опцией Z предусмотрены 12-штырьковые разъемы. Функциональные параметры распределителей можно регулировать и оптимизировать через графический интерфейс с использованием совместимого программного обеспечения и устройств. Необходимые программные комплекты, такие как KIT-E-SW-PS для интерфейса RS232, KIT-E-SW-BC для CANbus, и KIT-E-SW-BP для PROFIBUS-DP, должны заказываться отдельно. Функциональные параметры также могут настраиваться через блок управления fieldbus для опций -ВС и -ВР, используя стандартные протоколы, подробно описанные в руководствах пользователя.